売戸建住宅 南房総市 高崎 (岩井駅) 1階建 2LDK
| 価格 | 3,480万円 | 間取り | 2LDK | ||
|---|---|---|---|---|---|
| 交通 | JR内房線 / 岩井駅 徒歩24分 | ||||
| 所在地 | 千葉県南房総市高崎 | ||||
| 築年月 | 2011年3月(築14年9ヶ月) | 建物面積 | 95.04㎡ | 土地面積 | 公簿 348.00㎡ |
| 私道負担面積 | 1,250.00㎡ | ||||
ポイント
駐車場2台分
- 駐車場2台以上
- 南向き
- 閑静な住宅街
- 都市ガス
- システムキッチン
- トイレ2ヶ所
- 追焚き機能
- 二世帯向き
- 角地
- モニター付インターホン
物件詳細情報
| 交通 | JR内房線 / 岩井駅 徒歩24分 | ||
|---|---|---|---|
| その他交通 | - | ||
| 所在地 | 千葉県南房総市高崎 | ||
| 物件種目 | 売戸建住宅 | ||
| 価格 | 3,480万円 | 借地期間・地代(月額) | -(-) |
|---|---|---|---|
| 権利金 | - | 敷金/保証金 | -/- |
| 維持費等 | - | その他一時金 | - |
| 設備 | 床暖房 浄化槽 上水道 プロパンガス エアコン 温水洗浄便座 トイレ2ヶ所 | ||
|---|---|---|---|
| 瑕疵保証 | - | ||
| 瑕疵保険 | - | ||
| 評価・証明書 | - | ||
| 備考 | 法令等制限:自然公園法第2種特別地域 南房総市海辺の別荘地ハ-バ-アイランド内 現況有姿、契約不適合責任免責、境界非明示 |
||
| エネルギー消費性能 | - | 断熱性能 | - |
|---|---|---|---|
| 目安光熱費 | - |
| 建物名 | 売別荘 | ||
|---|---|---|---|
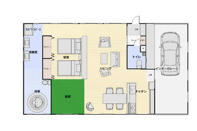
| 間取り(内訳) | 2LDK | 建物面積 | 95.04㎡ |
| 土地面積 | 公簿 348.00㎡ | 私道負担面積 | 1,250.00㎡ |
| 築年月 | 2011年3月(築14年9ヶ月) | 階建 | 平屋建 |
| 駐車場 | 有 無料 | 建物構造 | 木造 |
| 土地権利 | 所有権 | 都市計画 | 区域外 |
| 用途地域 | 無指定 | 接道状況 | 角地:2方道路 北東 私道 南東 公道 |
| 建ぺい率 | 10% | 容積率 | 20% |
| 地目 | 雑種地 | 地勢 | 平坦 |
| 国土法届出 | - | セットバック | - |
| 建築確認番号 | - | ||
| 現況 | 空家 | 引渡可能時期 | 相談 |
|---|---|---|---|
| 物件番号 | 1068387598 | ||
| 情報公開日 | 2024/12/09 | 次回更新予定日 | 2025/11/26 |
※「-」と表示されている項目については、情報提供会社にご確認ください。
情報提供会社
(株)モアナ・ハウジング
- 交通:
- JR総武本線/物井
【バス】8分 千代田団地 停歩1分 - 住所:
- 千葉県四街道市千代田5丁目45-5
- TEL:
- 043-312-3275
- FAX:
- 043-312-3097
- 所属団体など:
(一社)千葉県宅地建物取引業協会会員 (公社)首都圏不動産公正取引協議会加盟 - 取引態様:
- 媒介
- 免許番号:
- 千葉県知事免許(2)第17377号
- 間取図は、現況を優先させていただきます。
- 映像は物件の一部を撮影したものです。物件の契約にあたっての最終判断はご自身の判断に基づいて行ってください。
-
仲介手数料について
仲介手数料とは 売主と買主の契約の仲立ちを行う不動産会社に支払う報酬です。
宅地建物取引業法等(法第46条・建設省告示第1552号他)により取引態様ごとに受け取ることのできる報酬の上限額が定められています。
取引態様が「売主」の場合は不要です。
「媒介(一般・専任・専属専任)」「仲介」の場合、売買代金を以下のように区分し、それぞれ定められた割合を乗じて得た金額の合計額が上限となります。
(建物に係る消費税額を除外した額)200万円以下の金額 5.5% 200万円を超え400万円以下の金額 4.4% 400万円を超える金額 3.3%
※参考 簡易計算方式(算出した金額が上限額となります。)200万円を超え400万円以下の場合 4.4%+2.2万円 400万円を超える場合 3.3%+6.6万円
「代理」の場合、一つの取引において、上記仲介の計算方法により算出した金額の2倍以内が上限となります。
※「低廉な空家等」物件については、特例により上記上限額を超える場合があります。
物件によって金額が異なります。
お問い合わせの際は十分ご確認ください。 - 消費税について
当サイトの課税対象となる物件価格およびその他費用等は、税込み表示となっております(100円未満は切上げ)。
詳しくは、当社までお問い合わせください。
